下图所示的现浇板配筋图,表示错误的是()。

A.①号钢筋为上部钢筋,直径8毫米
B.②号钢筋为底部钢筋,间距为8毫米
C.③号钢筋为上部钢筋,直径6毫米
D.④号钢筋为底部钢筋,间距150毫米
正确答案是B
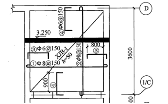
下图所示的现浇板配筋图,表示错误的是()。
下图所示的现浇板配筋图,表示错误的是()。

A.①号钢筋为上部钢筋,直径8毫米
B.②号钢筋为底部钢筋,间距为8毫米
C.③号钢筋为上部钢筋,直径6毫米
D.④号钢筋为底部钢筋,间距150毫米
正确答案是B